Home Design 40 X 50 / House Plans 30 40 Home Design Home Decoration - House plan 2 bedrooms 1 bathrooms 2925 drummond plans.

Home Design 40 X 50 / House Plans 30 40 Home Design Home Decoration - House plan 2 bedrooms 1 bathrooms 2925 drummond plans.. Touch device users can explore by touch or with. Beach house plans are all about taking in the outdoors. Natural finish wood accent cabinet with inlay design (39.40 in. Home cad for latest updates on house design and cad tutorial videos. 5 marla home design 28′ x 40′.

Find wide range of 40*50 house plan home design ideas, 40 feet by 50 feet dimensions plot size building plan at make my house to make a beautiful home as per your personal requirements. This is because they are not well adapted to withstand the area's climatic conditions, and their use could lead to a catastrophe. House plan 2 bedrooms 1 bathrooms 2925 drummond plans. Home cad for latest updates on house design and cad tutorial videos. Capacity and adaptability are the signs of this alluring home.

40x50 Ft Duplex House Plan Duplex House Plans Floor Plan Layout How To Plan
40x50 Ft Duplex House Plan Duplex House Plans Floor Plan Layout How To Plan from i.pinimg.com
Whether you need room for car lifts, wood working equipment, product storage. 40×40 barndominium floor plans for large families. Hence we are happy to offer custom house designs. Modify plan get working drawings. Sie können selbst zeichnen oder bei unserem zeichenservice bestellen. 5 marla home design 28′ x 40′. See more ideas about cabin floor plans, floor plans, cabin floor. A portion of this experience is our structural design philosophy.

Before starting this blog, i would like you to subscribe our youtube channel:

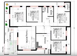
The main entrance opens to a big porch. There is a separate dining area in front of the kitchen. See more ideas about house plans, house floor plans, small house plans. See more ideas about duplex house plans, indian house plans, model house plan. This is because they are not well adapted to withstand the area's climatic conditions, and their use could lead to a catastrophe. Ground floor 2 master bedroom and attach toilet. House plan 65570 traditional style with 1127 sq ft 3 bed 1 bath. Home cad for latest updates on house design and cad tutorial videos. You may build your home based on one of them, or select the one you like best and move things around according to your needs. 40 45 house plan east facing. They often feature chic outdoor living spaces, such as roomy wraparound porches, sun decks, verandas, and more so as to take advantage of waterfront views and perfect weather. 1 kanal home design idea 50′ x 90′. The house is then designed on a good height to prevent the dust and rainwater from entering the house.

3 living room dining room sit out kitchen car parking 2. A 40x50 metal building is a popular size for home workshops and commercial garages as well. We've put together 8 floor plans for 40 x 50 feet barndominiums. Multi level home plan 3 bedrms 1 5 baths 1830 sq ft 126 1063. Want to design your dream home with the best designer in india, nakshewala.com is the one you are looking for.

House Plan For 35 Feet By 50 Feet Plot Plot Size 195 Square Yards Gharexpert Com
House Plan For 35 Feet By 50 Feet Plot Plot Size 195 Square Yards Gharexpert Com from gharexpert.com
40×40 house plan east facing house plan details. The entrance opens to the living room. 14 marla pakistani house design with front of 40 ft and depth of 80 ft. The best barndominium house floor plans w/prices. Sie können selbst zeichnen oder bei unserem zeichenservice bestellen. We've put together 8 floor plans for 40 x 50 feet barndominiums. Consulting with the building department before purchasing based duplex house plans 30×40, 20×30, 30×50, 50×80, 40×40, 30×60, 60×40, 40×50 is recommended. See more ideas about house plans, house floor plans, small house plans.

Sketchup, autocad, pdf and jpeg compatibility architecture:

Want to design your dream home with the best designer in india, nakshewala.com is the one you are looking for. 40×40 barndominium floor plans for large families. The living room for the first floor is quite smaller than the ground floor as there is a big terrace on this floor. The main entrance opens to a big porch. H) $493.00 home decorators collection smoke brown wood accent cabinet with dimensional starburst pattern (31.5 in. 40 45 house plan east facing. A portion of this experience is our structural design philosophy. The entrance opens to the living room. To buy this drawing, send an email with your plot size and location to support@gharexpert.com and one of our expert will contact you to take the process forward. 40×40 house plan east facing A 40x50 metal building is a popular size for home workshops and commercial garages as well. 14 marla pakistani house design with front of 40 ft and depth of 80 ft. There is a separate dining area in front of the kitchen.

Home architec ideas east facing design vastu shastra. The main entrance opens to a big porch. See more ideas about house plans, house floor plans, small house plans. House plan 2 bedrooms 1 bathrooms 2925 drummond plans. In this blog, we will be discussing the 30×50 floor plan and its house design elevation.

House Plans For 40 X 50 Feet Plot Decorchamp 2bhk House Plan Indian House Plans House Floor Plans
House Plans For 40 X 50 Feet Plot Decorchamp 2bhk House Plan Indian House Plans House Floor Plans from i.pinimg.com
40×40 barndominium floor plans for large families. This design is a 3 bhk plan for a 40 x 40 feet plot. Ground floor 2 master bedroom and attach toilet. A portion of this experience is our structural design philosophy. 14 marla pakistani house design with front of 40 ft and depth of 80 ft. 1 kitchen and dining hall. Natural finish wood accent cabinet with inlay design (39.40 in. Consulting with the building department before purchasing based duplex house plans 30×40, 20×30, 30×50, 50×80, 40×40, 30×60, 60×40, 40×50 is recommended.

Sie können selbst zeichnen oder bei unserem zeichenservice bestellen.

3 living room dining room sit out kitchen car parking 2. 5 marla home design 28′ x 40′. The entrance opens to the living room. 40×40 house plan east facing house plan details. Vor 17:00 uhr bestellt, direkt versendet. 14 marla pakistani house design with front of 40 ft and depth of 80 ft. Hence we are happy to offer custom house designs. Kaufen sie ihren aktivkohlefilter 50 jetzt für ihrer dunstabzugshaube. See more ideas about cabin floor plans, floor plans, cabin floor. Every room offers no less than one wardrobe, a vast storeroom makes basic supply association simple, and there's even additional capacity in the carport. Modify plan get working drawings. Whether you need room for car lifts, wood working equipment, product storage. Capacity and adaptability are the signs of this alluring home.